PLAN
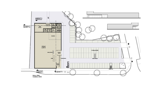
PROJEKTENTWICKLUNG EINKAUFSMARKT
Entwurf und Konzeptplanung für den Neubau eines Einkaufsmarktes auf 1200qm Nutzfläche in Hamburg