PLAN
 PLAN
 PLAN
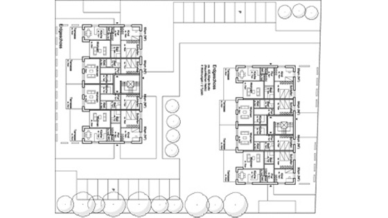
PROJEKTENTWICKLUNG "STADTNAHES WOHNEN"
Neubau von zwei Wohngebäuden im Norden Hannovers (Nähe MHH):

EG mit je vier Wohnungen (60-80qm)
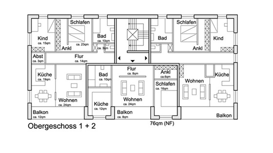
OGs mit je 3 Wohnungen (80-110qm)
DG je ein Penthouse (180qm)