ENTWURFSVISUALISIERUNG AUSSENANSICHT
 ENTWURFSVISUALISIERUNG NACHTANSICHT
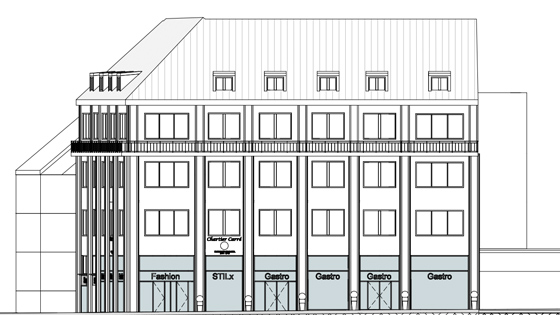
 ANSICHT
 GESCHOSSVISUALISIERUNG
 BESTAND
UMBAU INNERSTÄDTISCHER BÜROKOMPLEX
Der Bürokomplex in direkter Innenstadtlage von Kassel mit ca. 1300qm Verkaufsfläche, ca. 1000qm Bürofläche und ca. 500qm Wohnen soll entkernt, umgebaut und die historische Fassade erneuert und aufgewertet werden.

Hier: Bestandsaufnahmen, Entwurf mit Konzept, Vermarktung und Fassadenvisualisierungen